Apartment For Sale in Paris 14th (Montparnasse)
- €1,195,000
- €1,195,000
Overview
- Apartment
- 2
- 1
Description
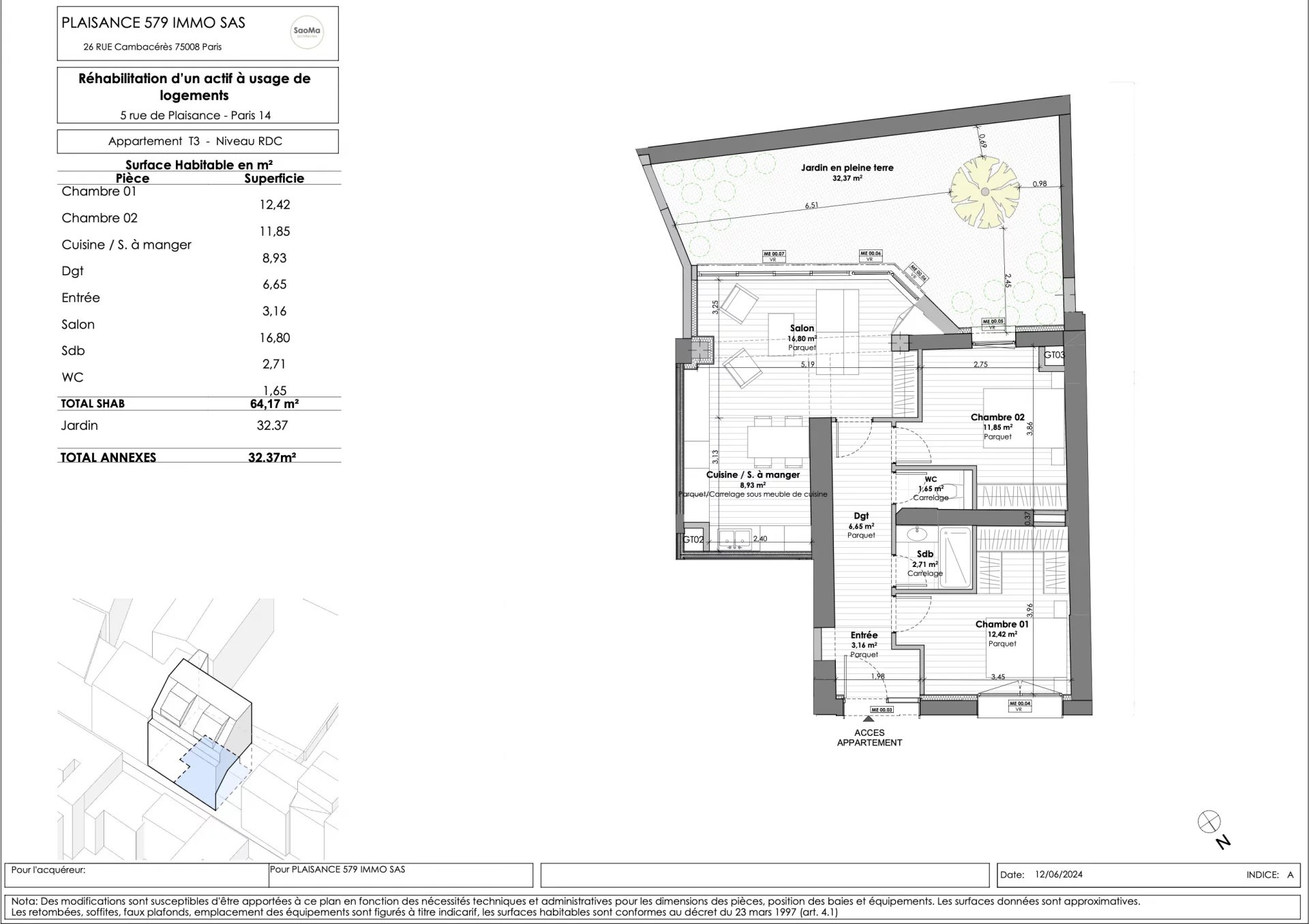
Paris 14th – Pernety: Apartment to Renovate (VIR)
On the ground floor of a beautifully restored historic building, just steps from Pernety metro and at the heart of a lively shopping district, this three-room apartment of 63.15 m2 offers a unique opportunity to create a modern, comfortable home.
The apartment comprises an entrance hall, a living room with open-plan fitted kitchen opening onto a 32.35 m2 private garden, two bedrooms, a bathroom, and separate WC. The property also benefits from large bike/stroller storage on the ground floor and cellars accessible via elevator in the basement.
This apartment combines the charm of classic Parisian architecture with the advantages of modern construction. Professional offices are allowed, and landscaped outdoor spaces are being created to enhance urban living quality, natural cooling, and green continuity. A rare opportunity in a highly sought-after location.
Details
-
Property Ref HH-16082651
-
Price €1,195,000
-
Property Size 95.53 m²
-
Land Area 32.35 m²
-
Bedrooms 2
-
Bathroom 1
-
Property Type Apartment
Contact Information
Similar Listings
- Home Hunts



