Apartment For Sale in Paris 16th (Trocadéro – Etoile – Passy)
- €12,600,000
- €12,600,000
Overview
- Apartment
- 3
- 2
Description
Iconic Eiffel Tower View –
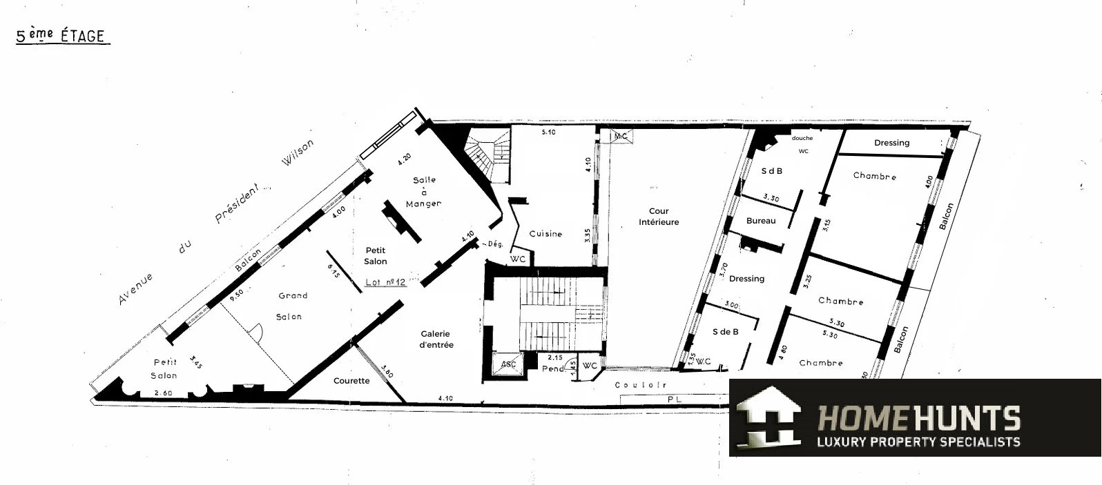
Paris 16th – In the heart of the prized Iena district, on the 5th and top floor by elevator of an early 20th century building of the highest standing, this elegant 333 m2 reception apartment boasts an exceptional view of the Eiffel Tower and numerous Parisian monuments.
Alone on the landing, it comprises an entrance hall, a luminous double reception room bordered by large, open-air balconies, a large dining room, a separate kitchen, a master suite with dressing room and bathroom, and two additional bedrooms sharing another bathroom. Plenty of storage space. Very high ceilings and air conditioning.
Two service studios, a closed box garage in the building’s courtyard, and two cellars complete this stunning offer.
The Lena district in Paris’s 16th arrondissement is one of the capital’s most elegant and sought-after neighborhoods. Just moments from the Trocadero, Avenue Kleber, and the Eiffel Tower, it offers refined Haussmannian architecture, wide tree-lined avenues, and a serene, residential atmosphere. Home to embassies, luxury boutiques, and prestigious schools, Lena combines Parisian sophistication with exceptional convenience — a discreet enclave for families and professionals seeking timeless elegance in the heart of western Paris.
Contact us today to find out more.
Details
-
Property Ref HH-15963586
-
Price €12,600,000
-
Property Size 333 m²
-
Bedrooms 3
-
Bathrooms 2
-
Property Type Apartment
Contact Information
Similar Listings
- Home Hunts






