Villa/House For Sale in Paris 14th (Montparnasse)
- €4,050,000
- €4,050,000
Overview
- Villa/House
- 5
- 3
Description
Paris 14th — Contemporary Off-Plan Townhouse with Terraces & Garden
In the heart of the 14th arrondissement of Paris, this elegant off-plan contemporary residence offers 174.95 m2 of living space, thoughtfully designed to combine architectural sophistication, natural light, and refined comfort.
The ground floor features an entrance hall, a vast reception area opening onto a 15 m2 private garden, a fully fitted and equipped open kitchen, and a guest WC.
The first floor hosts a bedroom, a games room or additional bedroom, a bathroom with WC, and built-in storage.
On the second level, the principal suite enjoys direct access to an 8.15 m2 terrace.
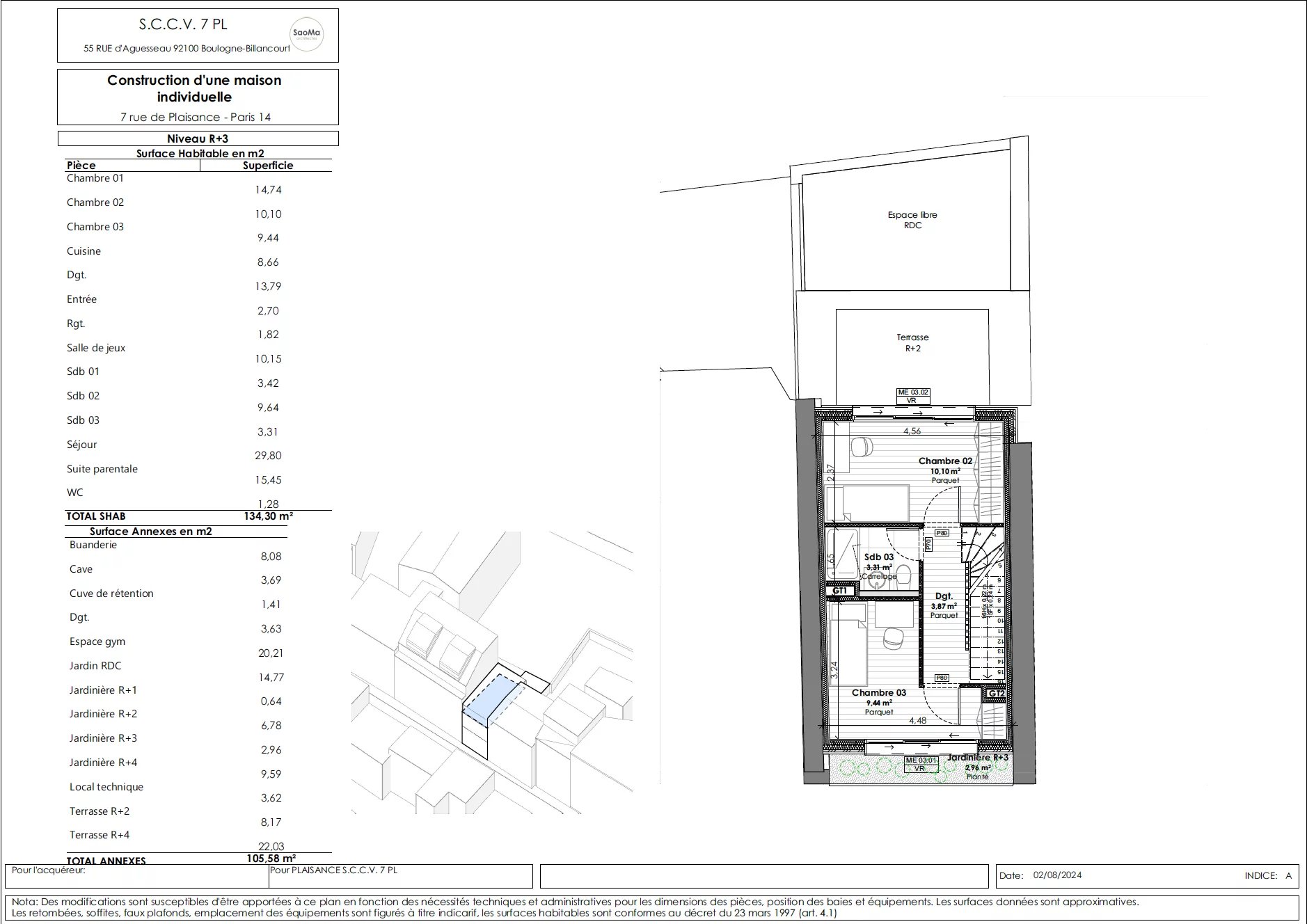
The third floor comprises two further bedrooms, a bathroom with WC, and extensive storage.
Above, a beautifully landscaped 22 m2 rooftop terrace framed by planters creates an exceptional outdoor living space.
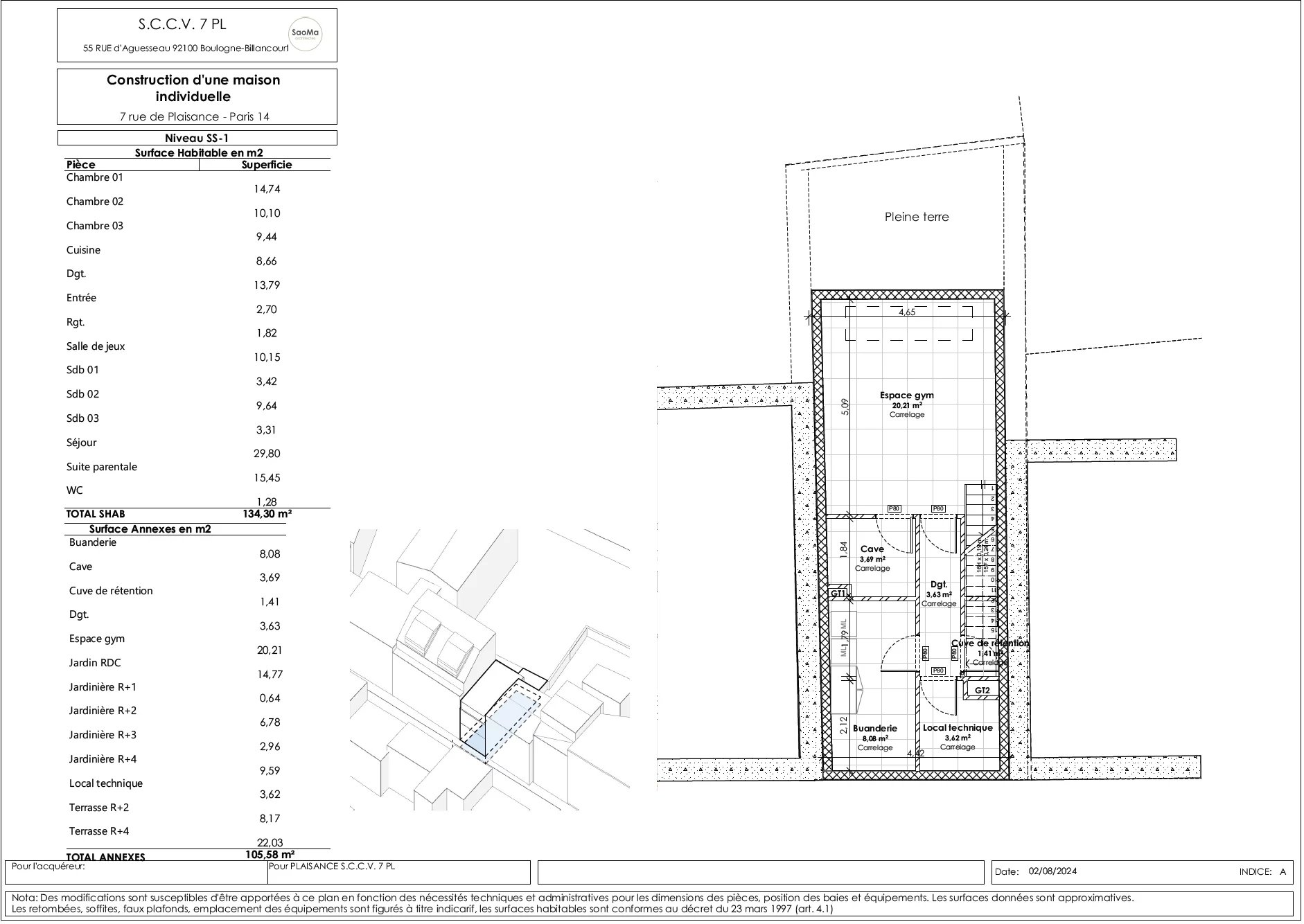
The lower level includes a 20.20 m2 gym area, cellar, laundry room, and technical room.
Flooded with natural light and perfectly quiet, the property benefits from dual exposure and open views over gardens. Designed with landscaped outdoor spaces to enhance urban cooling and green continuity, it complies with RE2020 environmental standards and is expected to achieve an A-rated energy performance. External shading systems ensure optimal thermal comfort during summer months.
A rare opportunity to acquire a future-ready architectural home offering tranquility, sustainability, and contemporary elegance in one of Paris’s most authentic residential districts.
Details
-
Property Ref HH-16082646
-
Price €4,050,000
-
Property Size 240 m²
-
Bedrooms 5
-
Bathrooms 3
-
Property Type Villa/House
Contact Information
Similar Listings
- Home Hunts











